Thiết bị đóng cửa tự động âm Hafele DCL33 931.84.269

Thiết bị đóng cửa tự động âm Hafele DCL33 931.84.269

  •  931.84.269
  • 3.660.000đ 5.242.000đ
  •  

     Thiết bị đóng cửa tự động

  • Mô tả chi tiết

DCL33 có chức năng giữ cửa
Chất liệu: Hợp kim nhôm
Hoàn thiện: Màu bạc
Đặc tính
Kiểm định theo tiêu chuẩn EN 1154
Có cơ cấu cam
Đạt chứng nhận CE
Lắp âm trên cánh cửa hoặc trên khung
Có thể điều chỉnh lực đóng
Có thể điều chỉnh tốc độ chốt
Có thể điều chỉnh tốc độ đóng
Phù hợp cho cửa mở trái và mở phải
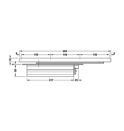
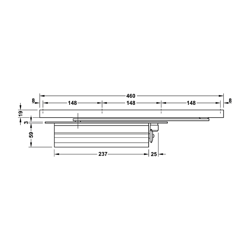
Thông tin kỹ thuật
Lực đẩy EN2-EN4
Chiều rộng cửa 750-1.100 mm
Trọng lượng tối đa 80kg
Độ dày cửa tối thiểu 46 mm
Góc mở tối đa 115°
Góc giữ cửa 115°

Sản phẩm cùng loại
Zalo