Bộ Rổ Đựng Gia Vị 400mm Hafele 549.20.040

Bộ Rổ Đựng Gia Vị 400mm Hafele 549.20.040

  • Mô tả chi tiết

Bộ Rổ Đựng Gia Vị 400mm Hafele 549.20.040

Tính Năng :
- Dòng sản phẩm mới của Hafele , thiết kế cho không gian nhỏ
- Phù hợp lưu trữ chai lọ gia vị khác nhau
- Vật liệu : Inox 304
- Tải trọng tối đa : 30kg
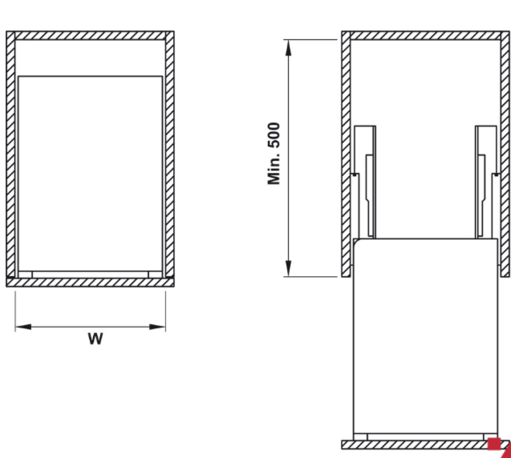
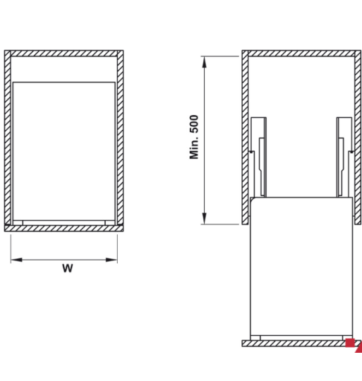
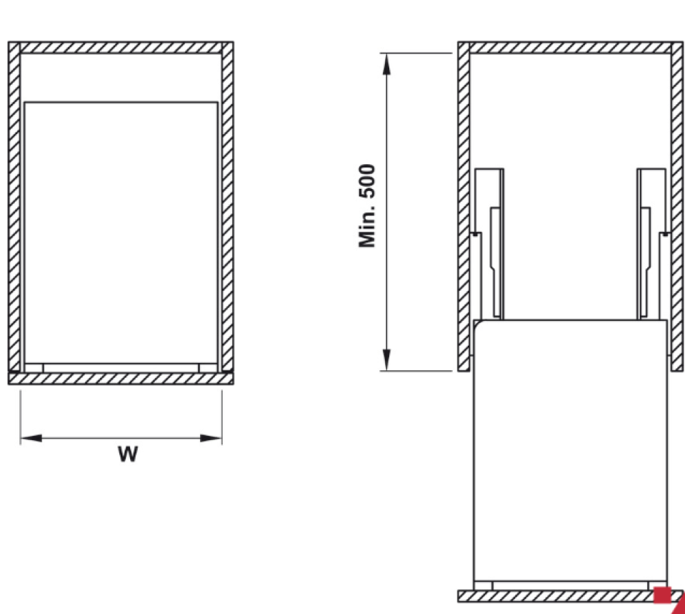
- Chiều rộng cửa : 400mm
- Chiều rộng lọt lòng ( R ) : tối thiểu 362 - 368mm
- Chiều sâu lọt lòng ( S ) : tối thiểu 500mm
- Kích thước : D364 x R475 x C460mm
- Đã được kiếm chứng an toàn vệ sinh thực phẩm
- Dễ dàng vệ sinh 
- Trọn bộ gồm : bộ ray giảm chấn lắp đáy, 2 bas mặt trước, 2 bas giữ ray, khung rổ, 2 bas nhựa kết nối khung với rổ, 18 ốc lắp đặt
- Đóng gói : 1 bộ

Sản phẩm cùng loại
Zalo